- Tipologia de Projeto: Residencial
- Autor do projeto: ONNOARQ
- Arquiteta Líder: Thaysi dos Santos
- Ano da elaboração: 2022
- Localização: Santo Amaro da Imperatriz, SC – Brasil
- Área construída: 244,44 m²
- Fotografia: Everson Martins

Foto: Everson Martins
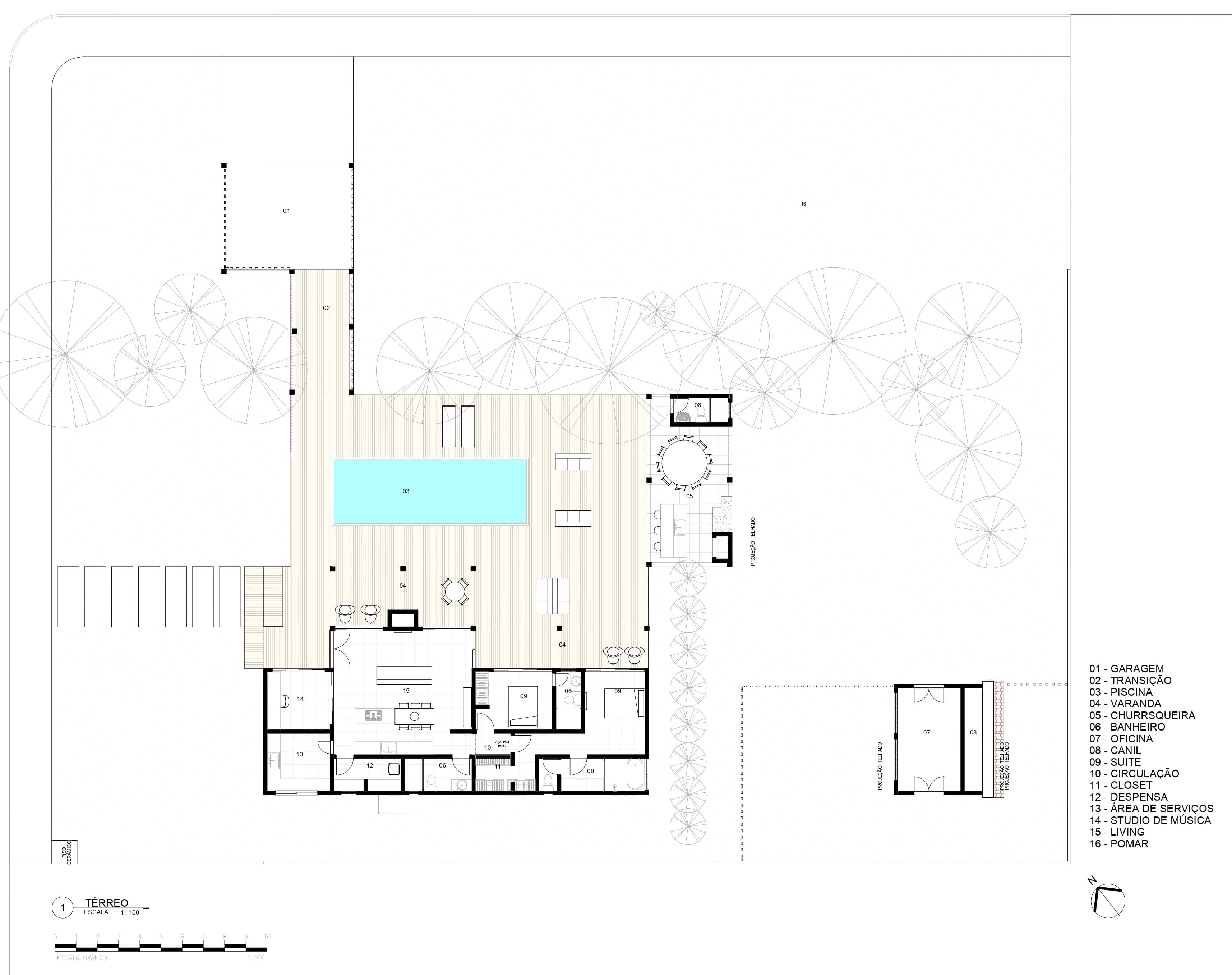
A concepção arquitetônica da Residência Lar do Samba teve como foco central os momentos a serem vividos nesta casa conectando com a essência dos clientes. Já com as filhas criadas, o casal está entrando em uma nova fase da vida buscando mais contato com a natureza e desaceleração, o marido é músico e toca em rodas de samba, com isso buscou-se conectar a arquitetura a momentos únicos.

Foto: Everson Martins

Foto: Everson Martins
O conceito de casa de campo foi a diretriz principal para a escolha dos materiais e estilo arquitetônico, com a predominância da madeira e tijolo maciço, resultou em uma combinação minimalista e pura, convidando o entorno a compor o cenário, por um lado as árvores existentes a nordeste e a oeste o pôr do sol visto da piscina.

Foto: Everson Martins
As suítes e áreas sociais estão de frente para a grande parede de árvores existentes no terreno, poder conectar com um visual assim é fenomenal! Emoldurar a natureza é primordial para proporcionar ambientes únicos, trazendo de fora para dentro cenas que só a natureza proporciona.

Foto: Everson Martins

Foto: Everson Martins

Foto: Everson Martins
De maneira intencional, a residência teve sua fachada principal voltada para dentro do terreno, aproveitando a vegetação existente e trazendo total privacidade aos clientes. A garagem foi fragmentada da casa, para proporcionar um percurso coberto com iluminação e paisagismo fazendo deste um caminho de transição que começa coberto e misterioso, terminando descoberto com um elemento surpresa: A casa vista de frente, imponente convidando a entrar.

Foto: Everson Martins
A planta foi concebida com as áreas sociais e íntimas voltadas para a vegetação local e a leste, com as árvores auxiliando na temperatura e incidência solar. Já os ambientes de serviços estão situados atrás dos ambientes sociais e íntimos, na divisa com a fachada sul que também é divisa com o lote vizinho, já prevendo que futuramente terá uma nova casa e que essa fachada terá que proporcionar privacidade a todos.

Foto: Everson Martins

Foto: Everson Martins
Estruturalmente houve o desafio do varandão externo, sem o uso convencional de treliças, trazendo um visual mais limpo e amplo. O método construtivo adotado foi o misto, estruturas aparentes de madeira e concreto.

Foto: Everson Martins

Foto: Everson Martins








Localização:
Localização aproximada, pode indicar cidade/país e não necessariamente o endereço exato.
Texto disponibilizado pela ONNOARQ
Gostou? Comente sobre!







