- Tipologia de Projeto: Residencial
- Autor do projeto: Diego Alcântara – Studio A108 Arquitetura
- Arquitetos Líderes: Diego Alcântara
- Ano da elaboração: 2015
- Localização: Uberlândia, MG – Brasil
- Área do Terreno: 387,00 m²
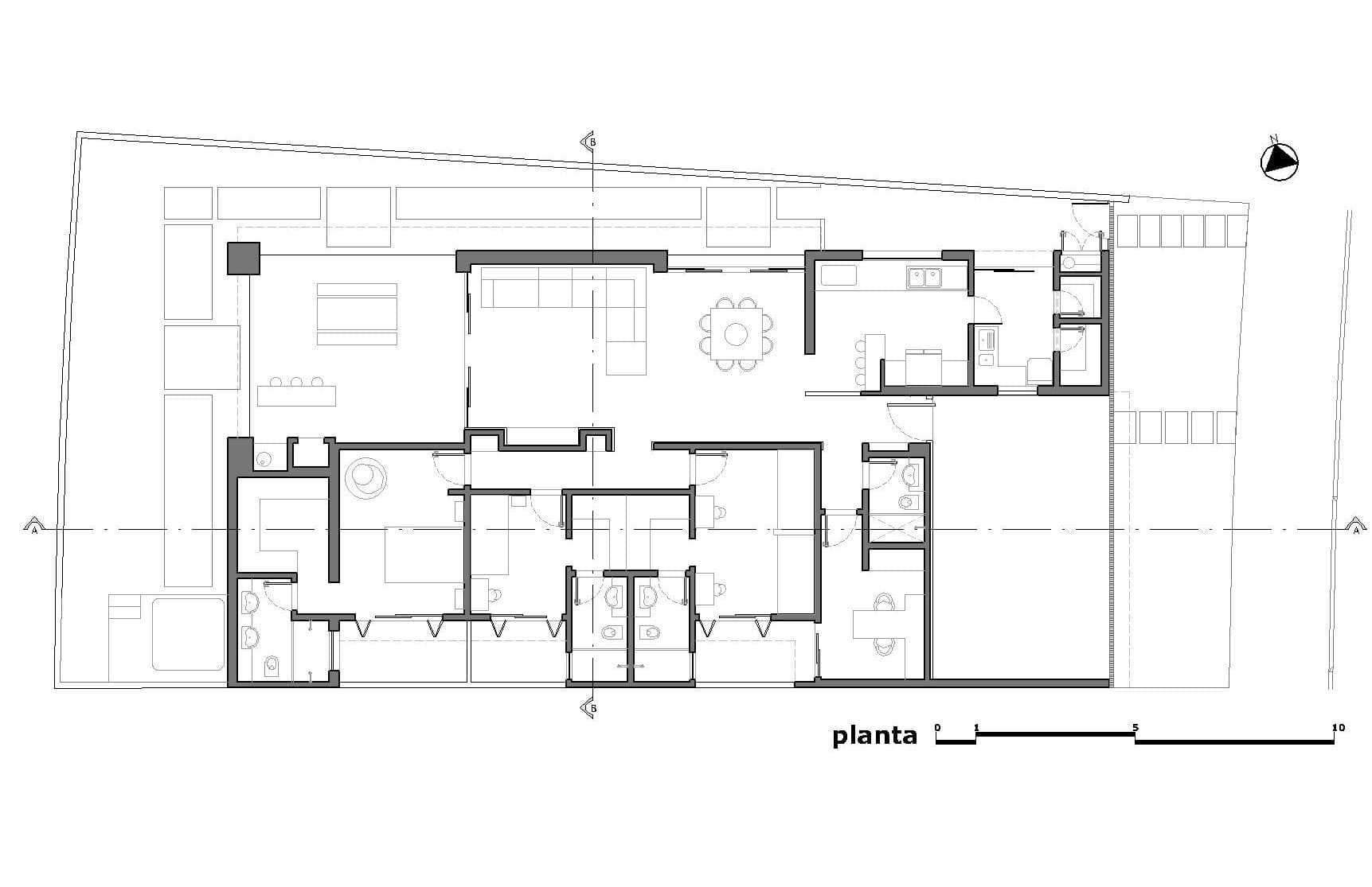
- Área construída: 216,00 m²
- Fotografia: Mak Cezar

Foto: Mak Cezar

Foto: Mak Cezar
O conceito prevalecente no projeto surgiu reunindo elementos que proporcionam bem estar e conforto a família, destacando referencias individuais e culturais do casal luso brasileiro.

Foto: Mak Cezar

Foto: Mak Cezar

Foto: Mak Cezar
O brutalismo do concreto aparente proporciona proteção e segurança, nesse caso uma laje única xilogravada com a memória dos sarrafos usados na forma. A praticidade do piso em concreto polido estendendo-se sob as áreas de convivência contrasta com a austeridade do tijolo aparente pintado na cor branca combinado com os nostálgicos cobogós.

Foto: Mak Cezar

Foto: Mak Cezar
As vigas invertidas possibilitaram uma laje inferior única e plana, deixando os vãos livres para serem vencidos pelas esquadrias de cedro feitas sob medida. A madeira traz conforto térmico e acústico, empregada nos painéis de jequitibá separando longitudinalmente os ambientes de convivência dos ambientes de repouso. Adotada da mesma forma na fachada principal, oculta a porta de mesmo material e possibilita um acesso mais reservado.

Foto: Mak Cezar

Foto: Mak Cezar

Foto: Mak Cezar
Por estar localizada em uma região de clima quente os quartos foram orientados a sudeste, impossibilitando o aquecimento excessivo durante a tarde. As paredes duplas de tijolo aparente seguem orientação solar norte e oeste enquanto a laje maciça impermeabilizada coberta com jardim e partes com argila expandida, proporciona beirais sobre as esquadrias protegendo-as de insolação direta.

Foto: Mak Cezar

Foto: Mak Cezar
O paisagismo é natural, com plantas e árvores já desenvolvidas distribuídas aleatoriamente, inclusive de forma grosseira, assemelhando-se a jardins comuns nos quintais das avós. Contudo, o passeio cumpre forma ortogonal feitos com pedras de arenito rosa comuns na região, circundando todos ambientes externos.

Foto: Mak Cezar

Foto: Mak Cezar

Foto: Mak Cezar
Porém, a maior dificuldade em projetar a própria residência é nunca estar satisfeito com o resultado, sempre indagando que algo poderia ser feito diferente. Arquitetar para si é uma autocrítica constante.

Foto: Mak Cezar

Foto: Mak Cezar

Foto: Mak Cezar
Ficha Técnica:
- Projeto Estrutural: GeD engenharia
- Projeto Elétrico: Guilherme Vieta
- Projeto Hidráulico: Peter Cristaldo
- Eficiência Solar: E-sol Brasil
- Acompanhamento e Execução: Diego Alcântara – Studio A108 Arquitetura
- Esquadrias e Marcenaria: Casa Nobre Madeiras
- Pedras e granitos: Polipedras
- Acabamentos: Metal Nobre
- Iluminação: Interpam e Dfine Iluminação
- Softwares: Autodesk AutoCad e SkecthUp
- Maquete: Lego Studio Architecture






Localização:
Localização aproximada, pode indicar cidade/país e não necessariamente o endereço exato.
Texto disponibilizado pela Studio A108 Arquitetura
Gostou? Comente sobre!







